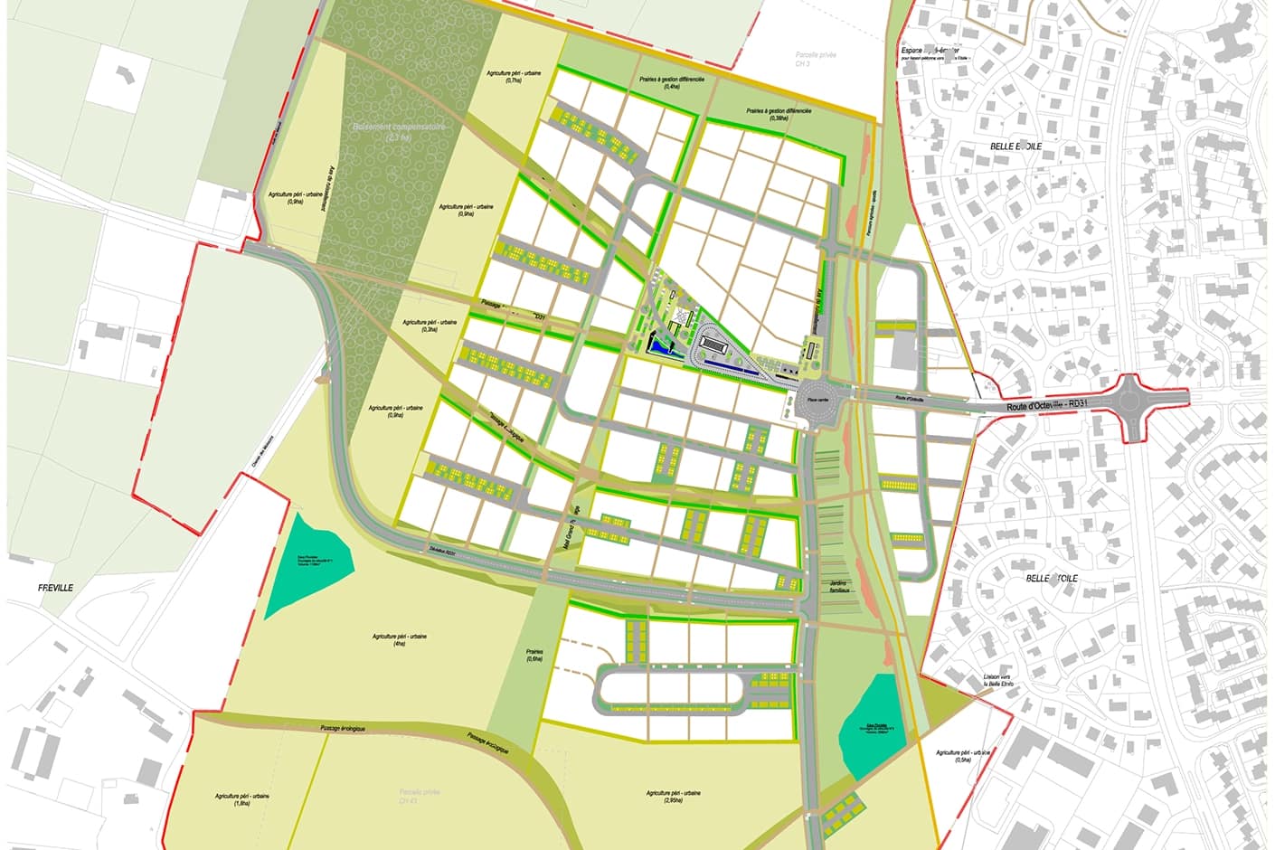
ECOQUARTIER DE MONTIVILLIERS
La Municipalité de Montivilliers a décidé la réalisation d’un écoquartier de 1000 logements sur 58 ha dans le secteur compris entre le Quartier de la Belle Etoile et les Hameaux de Réauté et de Fréville.
L’écoquartier prend place sur des terres agricoles, en pente douce vers le Sud, entre des urbanisations déjà en place.
Le projet est prétexte à inventer une nouvelle forme d’habiter, au cœur d’un système naturel et agricole : une nature labourée.
L’écoquartier sera tenu par des espaces naturels et agricoles pratiqués comme des jardins par les habitants mais gérés comme des terres agricoles.
ANNÉE
Début des études 2012 - Achèvement des travaux 2022ÉQUIPE
Atelier Philippe Madec (mandataire) + Signes Paysages + InfraServices + Ecotone + Le Sommer Environnement (cotraitants)LIEU
Montivilliers (76)MAÎTRISE D'OUVRAGE
Ville de MontivilliersSURFACE
58 haMONTANT DES TRAVAUX
18,2 M€ HTDate :
31 décembre 2022

