ZAC BERGE DU LAC – BORDEAUX

Le programme porte sur la création de la ZAC Berge du Lac – Opération Ginko.

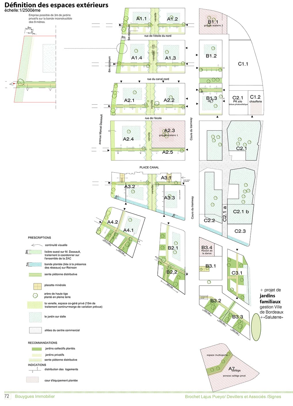
Portant des objectifs de qualité paysagère et des objectifs de qualité environnementale et architecturale, cette opération comprend notamment :

  • La mise au point du Plan Directeur de la ZAC
  • La qualification des espaces publics et des surfaces à bâtir
  • L’établissement du cahier des charges par phase du projet
  • La coordination architecturale, urbaine et paysagère
  • La participation aux réunions de concertation

 

Année
Début de la mission 2007 - Fin de la mission d'AMO 2020
Équipe
BLP Architectes (mandataire) + Devillers Urbanistes + Signes Paysages + Artelia + I3C/FC2 (cotraitants)
Lieu
Bordeaux (33)
Maîtrise d’ouvrage
Bouygues Immobilier
Mission
AMO - Assistance à Maîtrise d’Ouvrage pour la mise en œuvre du projet d’urbanisme, et de la construction des immeubles à l’intérieur de son périmètre
Surface
27 ha
Date :
Catégorie